Meget lys 3-værelses med 2 store altaner. NY PRIS.

Bygmestervej 25, 3. th., 2400 København NV - Andelsbolig

Andelsboligforeningen A/B Enighedens Park, etape 5 er medlem af

Kontantpris
Kr. 2.150.000

Meget lys 3-værelses med 2 store altaner. NY PRIS.

I en af Københavns nyeste andelsboligforeninger opført i 2006, er denne skønne lejlighed til salg.

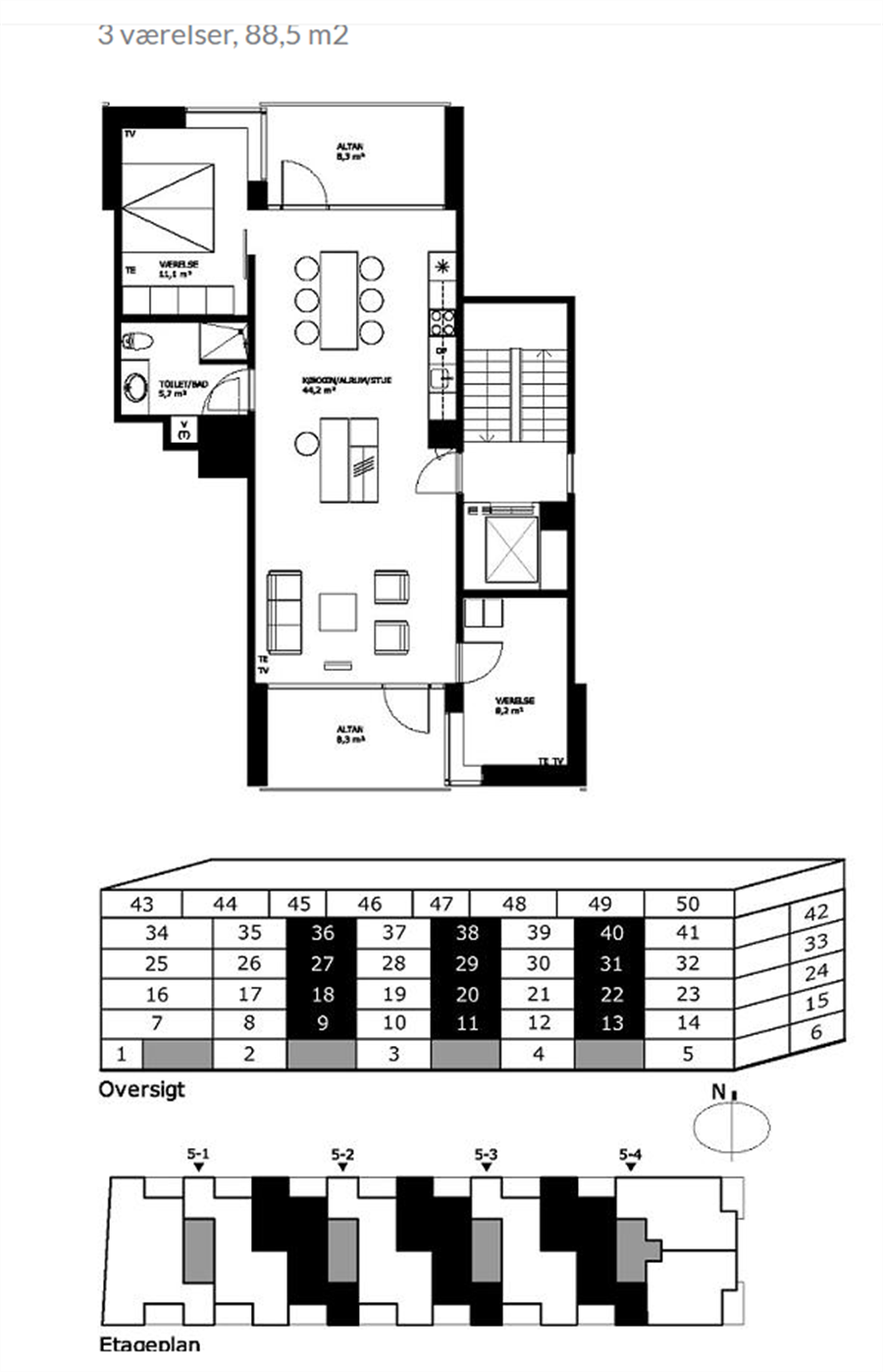
Nok en af ejendommens bedst beliggende lejligheder.

Fra stuen mod Bygmestervej 100 meter væk er der direkte adgang til værelse/kontor også med dejligt lysindfald fra det syd - østlige vinduesparti, som gør rummet stort og meget anvendeligt.

Stuen giver også adgang til den ene af de 2 store indbyggede altaner. Dens store areal gør den meget brugbar og helt ugenert, hvad enten man vil nyde solens stråler på liggestole eller sidde og spise ved borde og stole.

Fra indgangen til stuen kan man også vælge at gå mod Bisiddervej og træder derved ind i køkken/alrummet som er hjertet for lejlighedens fællesskab og spiseoplevelser.

Igen her er der på afstand udsigt til nabobygningerne, men ikke mindst endnu en altan, som giver de dejlige aftner muligheder for at sidde og spise udenfor, igen helt ugenert på den store indbyggede altan.

Fra køkken/alrum er der adgang til det store soveværelse, som vender mod nord/øst og har plads til både dobbeltseng, skabe og stadig med godt lysindfald fra vinduesparti og altan.

Herfra kan man også finde bad/toilet og vaskesøjle alt i et rum, uden det føles småt.

Når lejligheden kan beskrives som velbeliggende, skyldes det ikke mindst at der er tale om det meget lys uden nysgerrige naboer, og en opgang hvor der ånder af fred og ro, samt beliggenheden midt i bygningen, der gør at varmeforbruget er meget lavt, hvorfor sælger hvert år har fået ca. halvdelen af a conto bidraget tilbagebetalt.

Boligen må købes som forældrekøb.


Se boligen på Boliga.dk

  • Bedste pizzeria
    under 100 m

    Tribeca NV

  • Bedste takeaway
    under 100 m

    HUBB

  • Apotek
    under 500 m

    Apoteket Frederikssundsvej

  • Bedste café
    under 400 m

    Bagt

  • Bedste værtshus
    under 100 m

    Åbenbar

  • Bibliotek
    under 750 m

    Biblioteket Rentemestervej

  • Busstoppested
    under 100 m

    Movia, Lygten

  • Byggemarked
    under 200 m

    Silvan Byggemarked

  • Børnehave
    under 50 m

    Enighedens Børnehus

  • Grønthandler
    under 200 m

    Lygtens Bazar

  • Hospital
    under 750 m

    Bispebjerg Hospital

  • Hvidevarebutik
    under 1 km

    Elgiganten

  • Hæveautomat
    under 200 m

    Nordea, Nørrebro Bycenter

  • Kiosk
    under 750 m

    7-eleven

  • Metrostation
    under 750 m

    Nørrebro

  • Park
    under 750 m

    Den Røde Plads

  • Park
    under 600 m

    Bispebjerg Hospital udendørsarealer

  • Skole
    under 400 m

    Tagensbo Skole

  • Skole
    under 750 m

    Svanevej Privatskole

  • Sportshal
    under 750 m

    Nørrebrohallen

  • Sportshal
    under 750 m

    Nørrebrohallen

  • Supermarked
    under 200 m

    Netto

  • Supermarked
    under 200 m

    LIDL

  • Togstation
    under 750 m

    Nørrebro S-togs Station

Her kan sælger vise sin egen boligvideo direkte fra Vimeo eller YouTube. Vi viser dig lige vores egen video, mens vi venter. Så kan alle også se hvor flot det kan se ud.

Boligens tilbehør:
  • Vaskemaskine
  • Tørretumbler
  • Keramisk komfur
  • Elkomfur
  • Emhætte
  • Opvaskemaskine
  • Ovn
  • Køle/fryseskab

Info

Andelsbolig
Boligafgift/md. 8.350,-
Anv. udgifter 1.157,-
Bolig (BBR) 88 m²
Værelser 3
Byggeår 2006
Etage 3.sal
» Økonomi
Faste udgifter
Boligafgift 8.350 kr./måned
Anvendelsesudgifter 1.157 kr./måned
I alt 9.507 kr./md.
Variable udgifter
Vand 342 kr./måned
Varme 815 kr./måned
El 300 kr./måned
» Download Salgsopstilling (PDF)
» Download Salgsopstilling NEWSEC » Download Egen boligbeskrivelse » Download » Download Vurdering » Download Vedtægter » Download Nøgleoplysningsskema » Download Husorden » Download Foreningsreferat » Download Foreningens årsregnskab » Download El-rapport » Download Budget

Andre faciliteter

  • Internet
  • Kabel-tv
  • Cykelkælder
  • Kælderrum
  • Altan
  • Høj kælder
  • Eget værksted
  • Husdyr tilladt
  • Elevator
  • Dørtelefon
Boligen er vist 3.886 gange