Velholdt seniorandelsbolig i Lisbjerg – ro, fællesskab og natur
Præsteager 6, Lisbjerg, 8200 Aarhus N - Andelsrækkehus
Kr. 723.488
Velholdt seniorandelsbolig i Lisbjerg – ro, fællesskab og natur
Velholdt seniorandelsbolig i Lisbjerg – ro, fællesskab og natur tæt på Aarhus
Drømmer du om en tryg og overskuelig bolig i grønne omgivelser – men stadig tæt på byens puls? Så byder denne skønne andelsbolig i Lisbjerg på det bedste fra begge verdener!
Adresse: Lisbjerg – kun 2 minutter fra Lisbjerg Skov og med letbaneforbindelse direkte til Aarhus C
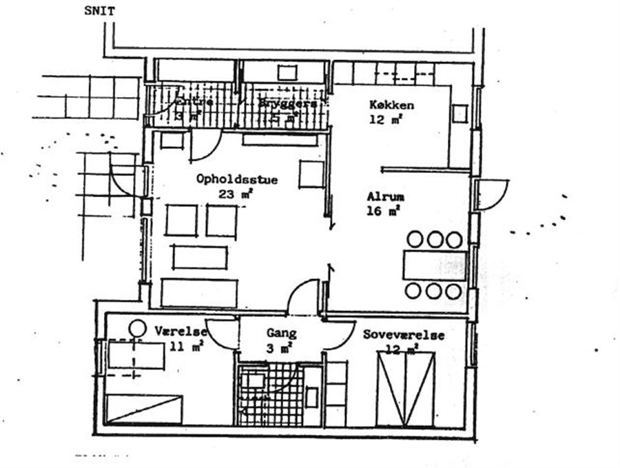
Boligareal: 105 m²
Boligafgift: 5.927 kr./md.
Overtagelse: Mulig fra 1. november
Seniorandelsforening (+50) med 12 boliger og stort fælleshus
Denne velholdte bolig byder på en gennemtænkt planløsning med:
Entré og praktisk bryggers
Lyst køkken i åben forbindelse med alrum og opholdsstue
Stort soveværelse og ekstra værelse/kontor
Rummelig gang og pænt badeværelse/toilet
Boligen ligger centralt i en række på tre, hvilket giver lavt varmeforbrug og ingen endegavl – en både økonomisk og komfortabel fordel.
Fællesskab og faciliteter
Du bliver en del af en veldrevet seniorandelsforening med kun 12 boliger og et stort, moderne fælleshus. Her er der plads til både fester, fællesspisning og overnattende gæster – alt sammen i trygge og sociale rammer.
Lisbjerg – byen i vækst
Lisbjerg er en by i rivende udvikling med mange nye tilflyttere, gode aktivitetsmuligheder og kort afstand til både natur og byliv. Med Lisbjerg Skov som nærmeste nabo og letbanen lige om hjørnet, er det nemt at nyde både ro og storbyens tilbud.
Ejendommen er løbende renoveret med nye tage, vinduer, døre, isolering og facadebeklædning – alt sammen med fokus på kvalitet og lavt energiforbrug.
En sjælden mulighed for dig, der ønsker en tryg, aktiv og bekvem tilværelse i naturskønne omgivelser – tæt på Aarhus.
Tag kontakt i dag for en fremvisning på 50 59 18 78 – denne bolig skal opleves!
Sælger har ikke tilføjet nogen steder til boligens lokalområde endnu
Her kan sælger vise sin egen boligvideo direkte fra Vimeo eller YouTube. Vi viser dig lige vores egen video, mens vi venter. Så kan alle også se hvor flot det kan se ud.
- Elkomfur
- Opvaskemaskine
- Ovn
- Køle/fryseskab
- Kogeplader
Få hjælp og vejledning til finansiering af dine drømme
Info
| Boligafgift/md. | 5.927,- |
|---|---|
| Anv. udgifter | 0,- |
| Bolig (BBR) | 105 m² |
| Værelser | 4 |
| Byggeår | 1990 |
| Energimærke |
Faste udgifter
| Boligafgift | 5.927 kr./måned |
|---|
Variable udgifter
| Vand | 200 kr./måned |
|---|---|
| Varme | 745 kr./måned |
| El | 390 kr./måned |
Andre faciliteter
- Kabel-tv
- Loftrum
- Egen parkering

