Totalrenoveret 2V med sydvendt terrasse – tæt på vandet
Mølleparken 6, st. 8., 3790 Hasle - Andelsbolig
Kr. 886.600
Totalrenoveret 2V med sydvendt terrasse – tæt på vandet
Totalrenoveret andelsbolig med sydvendt terrasse – tæt på vandet i Hasle
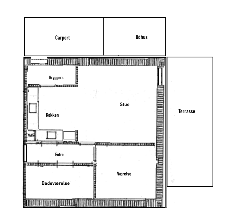
Indflytningsklar 2-værelses andelsbolig (stue + 1 værelse) på 71 m² i rolige omgivelser i Mølleparken, Hasle. Boligen er totalrenoveret i 2017 og har åbent køkken i forbindelse med stuen, samt separat soveværelse og badeværelse.
Boligen er en del af en lille og velfungerende boligforening med kun 8 boliger og god økonomi. Til boligen hører sydvendt terrasse og en nem lille have, samt udhus på ca. 8 m².
Kun ca. 500 meter til vandet og det samme til Hasle røgeri, kort afstand til by, indkøb og natur.
Andelspris inkl. forbedringer: 886.600 kr.
Ejerudgift pr. måned: 2.920 kr.
Ideel for enlige eller par, der ønsker en rolig, velholdt bolig på Bornholm.
Henvendelse:
Mail: [email protected]
Tlf. 20 29 91 71
Sælger har ikke tilføjet nogen steder til boligens lokalområde endnu
Her kan sælger vise sin egen boligvideo direkte fra Vimeo eller YouTube. Vi viser dig lige vores egen video, mens vi venter. Så kan alle også se hvor flot det kan se ud.
- Vaskemaskine
- Tørretumbler
- Elkomfur
- Emhætte
- Kummefryser
- Opvaskemaskine
- Mikroovn
- Ovn
- Køle/fryseskab
- Kogeplader
Få hjælp og vejledning til finansiering af dine drømme
Info
| Boligafgift/md. | 2.920,- |
|---|---|
| Anv. udgifter | 0,- |
| Bolig (BBR) | 71 m² |
| Værelser | 2 |
| Byggeår | 1986 |
| Etage | stuen |
Faste udgifter
| Boligafgift | 2.920 kr./måned |
|---|
Andre faciliteter
- Garage/Carport
- Udhus 8 kvm

