272 m² indflytningsklar villa med mulighed for lejeindtægt
Neptun Alle 1, 2770 Kastrup - Villa
Kr. 6.395.000
272 m² indflytningsklar villa med mulighed for lejeindtægt
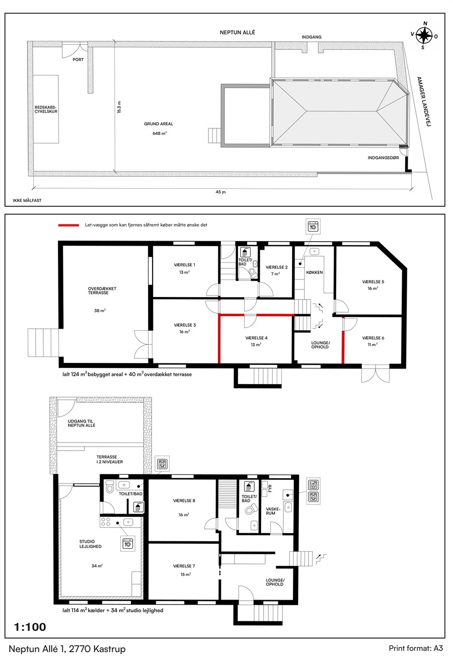
I alt 272 m² indflytningsklar, stor og spændende villa med mulighed for lejeindtægt fra separat lejlighed. Kun 20 min. på cykel til centrum af København.
Ejendommen er ideel til familien, der ønsker god plads i et hus med fleksible anvendelsesmuligheder, hvor den separate lejlighed kan anvendes til f.eks. teenager, hjemmekontor, gæster eller bedsteforældre. Alternativt kan lejligheden udlejes selvstændigt, hvilket giver en betragtelig årlig lejeindtægt, som kan bidrage væsentligt til dækning af ejendommens faste boligudgifter.
Villaen er løbende blevet renoveret og er 100% indflytningsklar. Stueplan på 124 m² består af stort nyere køkken med spiseplads, badeværelse med brusekabine, stor lys dagligstue, soveværelse samt tre værelser. Fra dagligstuen er der udgang til 40 m² overdække og delvist lukket terrasse.
Kælderen på 114 m². er indrettet til beboelse og består af tekøkken, badeværelse med bruseniche, vaskerum samt 2 gode værelser. Fra kælderen er der udgang til haven og baggård med udgang til Amager Landevej.
Den separate lejlighed på 34 m² er fuldt adskilt fra hovedboligen med egen indgang og egen terrasse, hvilket sikrer, at beboelse i lejlighed og hovedhus kan foregå uafhængigt af hinanden og uden gensidig gene. Lejligheden er indrettet for ca. to år siden og fremstår tidssvarende og velindrettet med opdaterede installationer. Alt fast inventar og interiør medfølger.
Ejendommen ligger på en 648 m² grund med syd/vestvendt lukket og velholdt have med nem vedligeholdelse. Den overdækkede terrasse giver mulighed for udendørs ophold i det meste af året. Derudover findes redskabsskur med overdækket plads til cykelparkering. Mulighed for parkering af bil, campingvogn, båd eller liggende på stenbelagt område.
Beliggende på en stille, lukket villavej i Kastrup med et roligt boligmiljø. Løjtegårdsskole ligger 500 meter for enden af Neptun Allé, så børn nemt kan gå til skole uden at krydse veje. Der er kort afstand til indkøb, restauranter, offentlig transport, lufthavn, Øresundsbroen samt motorvejsnet og det tager ca. 20 min. på cykel til centrum af København og 10 min. til Amager Strandpark. På trods af beliggenheden i Kastrup er ejendommen ikke påvirket af flystøj, da flytrafik ikke passerer over området.
Hvis du syntes denne bolig lyder interessant, kan fremvisning aftales ved kontakt til Morten Kirkevang på tlf. 27 28 52 01.
-
Pizzaria
under 50 mBella Italia
-
Supermarked
under 200 m365 Discount
-
Byggemarked
under 50 kmGenbyg
-
Skole
under 500 mLøjtegårdsskole
-
Restaurant
under 200 mCafe 2770
Her kan sælger vise sin egen boligvideo direkte fra Vimeo eller YouTube. Vi viser dig lige vores egen video, mens vi venter. Så kan alle også se hvor flot det kan se ud.
Få hjælp og vejledning til finansiering af dine drømme
Info
| Udbetaling | 320.000,- |
|---|---|
| Ejerudgift/md. | 1.138 |
| Bolig (BBR) | 124 m² |
| Værelser | 7 |
| Kælder | 148 m² |
| Grund | 648 m² |
| Byggeår | 1937 |
| Energimærke |
Faste udgifter
| Ejendomsværdiskat | 13.650 kr./år |
|---|

